(Symbol 436611) MIESZKANIE na SPRZEDAŻSzczecin, Pogodno
Przestronne mieszkanie dla rodziny – Pogodno
Dwupoziomowe mieszkanie z potencjałem – idealne dla rodziny

Mieszkanie położone jest w spokojnej części Pogodna, przy ul. Romualda Traugutta w Szczecinie.
To przestronny, dwupoziomowy lokal w zabudowie szeregowej, oferujący łącznie 155,30 m² powierzchni użytkowej.
Układ oraz charakter nieruchomości sprawiają, że to doskonała propozycja dla rodzin poszukujących dużego, funkcjonalnego mieszkania w kameralnym otoczeniu.

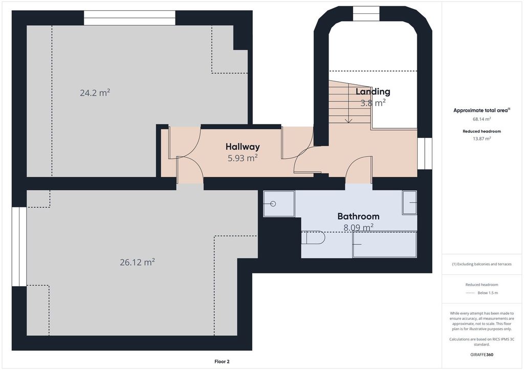
Układ i funkcjonalność

Mieszkanie zajmuje pierwsze piętro oraz poddasze budynku. Pomieszczenia są jasne, a układ pozwala na wyraźny podział na część dzienną i prywatną.
Wnętrze wymaga remontu, co daje możliwość pełnej personalizacji i stworzenia aranżacji dopasowanej do własnych potrzeb.

Poziom pierwszy:

salon z aneksem kuchennym o powierzchni ok. 40 m²,

sypialnia,

toaleta,

pomieszczenie gospodarcze / pralnia,

balkon z widokiem na zieleń.

Poziom drugi:

dwa duże pokoje,

łazienka z wanną i prysznicem,

korytarz i komunikacja.

Przestrzeń jest bardzo dobrze doświetlona dzięki dużym przeszkleniom i ekspozycji na kilka stron świata.
Rozkład pomieszczeń sprzyja wygodzie codziennego życia i zapewnia każdemu domownikowi poczucie prywatności.

Lokalizacja

Ulica Romualda Traugutta to spokojna, zielona część Pogodna – jednej z najbardziej cenionych dzielnic Szczecina.
Okolica jest kameralna, a jednocześnie dobrze skomunikowana z centrum miasta.

W zasięgu spaceru znajdują się:

sklepy i punkty usługowe (Żabka, paczkomat),

szkoły i przedszkola,

przystanki komunikacji miejskiej,

tereny spacerowe i place zabaw.

Połączenie spokoju i pełnej infrastruktury sprawia, że lokalizacja ta doskonale odpowiada potrzebom rodzin.

Dodatkowe informacje

Powierzchnia całkowita: 155,30 m² (zgodnie z księgą wieczystą),

Ogrzewanie: gazowe (piec dwufunkcyjny),

Forma własności: pełna własność,

Budynek: zabudowa szeregowa,

Otoczenie: spokojne i zadbane.

Podsumowanie

To mieszkanie stanowi doskonałą propozycję dla rodziny, która szuka przestrzeni i funkcjonalnego układu w dobrej lokalizacji.
Dwupoziomowy charakter, możliwość własnej aranżacji oraz położenie w sercu Pogodna to atuty, które sprawiają, że nieruchomość ma duży potencjał zarówno do zamieszkania, jak i jako inwestycja długoterminowa.

Treść niniejszego ogłoszenia nie stanowi oferty handlowej w rozumieniu Kodeksu Cywilnego. Treść ma charakter informacyjny i zalecamy ich osobistą weryfikację. Kontaktując się z biurem Klient wyraża zgodę na przetwarzanie danych osobowych zgodnie z przepisami ustawy z dnia 29 sierpnia 1997 roku o ochronie danych osobowych / Dz.U.Nr. 133 poz. 883/. Klientowi przysługuje prawo do wglądu do swoich danych osobowych i ich aktualizacji.

Symbol
436611
Stan budynku
BARDZO DOBRY
Symbol SWO
436611
Rodzaj nieruchomości
MIESZKANIE
Rodzaj transakcji
SPRZEDAŻ
Status
AKTUALNA
Rodzaj rynku
WTÓRNY
Cena cena w innych walutach
1 199 000,00 PLN
Stara cena
1 299 000,00 PLN
Cena za m2
7 720,54 PLN
Kraj
POLSKA
Województwo
ZACHODNIOPOMORSKIE
Miejscowość
Szczecin
Dzielnica - osiedle
Pogodno
Ulica
ul. Romualda Traugutta
Powierzchnia całkowita
155,30 m²
Rodzaj budynku
DOM
Rok budowy
1990
Standard
BARDZO DOBRY
Materiał ścian
CEGŁA
Typ kuchni
Z OKNEM
Liczba łazienek
1
Liczba WC
1
Liczba pokoi
4
Powierzchnia pokoi
23+24+16+40
Piętro
1
Ilość pięter [wliczając parter]
2
Wysokość kondygnacji [m]
260,00 cm
Linia telefoniczna
Napięcie 400V (siła)
Podłączony gaz
Internet
Telewizja kablowa
Lodówka
Piekarnik
Zmywarka
Ogrodzenie
PEŁNE
Ogródek
Widok na północ
Widok na południe
Widok na wschód
Widok na zachód
Nr Licencji
18591
Wyposażenie łazienki (wykaz)
WANNA, PRYSZNIC, UMYWALKA,

Doradca odpowiedzialny za ofertę

Tomasz Zaborowski

Zapytaj o ofertę

Podobne oferty nieruchomości