(Symbol 436812) LOKAL na WYNAJEMStargard,
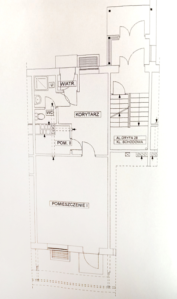
Lokal przy Aleji Gryfa
Do wynajęcia lokal usługowy w Stargardzie – idealne miejsce na Twój biznes!

Oferujemy do wynajęcia lokal usługowy zlokalizowany przy Alei Gryfa w Stargardzie, w rejonie, gdzie znajduje się już wiele innych lokali usługowych, co zapewnia duży ruch pieszy i samochodowy. To doskonała okazja, aby rozwinąć działalność w jednym z najatrakcyjniejszych miejsc miasta.

Charakterystyka lokalu:

Powierzchnia: 47.15 m²

Pomieszczenia: sala sprzedażowa, korytarz, WC, pomieszczenie socjalne

Dodatkowe atuty:

Drugie wejście od tyłu budynku, co ułatwia zatowarowanie i nie zakłóca działalności

Możliwość parkowania przy tylnym wejściu

Miejskie ogrzewanie

Nowe okna i drzwi wejściowe

Koszty wynajmu:

Cena: 25 zł/m² plus vat
Dodatkowo w czynszu zaliczki na media: prąd, woda, ogrzewanie, wywóz śmieci

Całkowity koszt miesięczny (czynsz brutto plus zaliczki na media): 1900 zł brutto

Lokal idealny dla sklepów, usług, biur czy innych działalności wymagających widoczności oraz łatwego dostępu. Wysoki standard, dobra lokalizacja oraz duży ruch w okolicy sprawiają, że jest to miejsce, które pozwoli Ci rozwinąć Twój biznes.

Zainteresowanych prosimy o kontakt. Zapraszam do obejrzenia lokalu!

Treść niniejszego ogłoszenia nie stanowi oferty handlowej w rozumieniu Kodeksu Cywilnego. Treść ma charakter informacyjny i zalecamy ich osobistą weryfikację. Kontaktując się z biurem Klient wyraża zgodę na przetwarzanie danych osobowych zgodnie z przepisami ustawy z dnia 29 sierpnia 1997 roku o ochronie danych osobowych / Dz.U.Nr. 133 poz. 883/. Klientowi przysługuje prawo do wglądu do swoich danych osobowych i ich aktualizacji.

Symbol
436812
Symbol SWO
436812
Rodzaj nieruchomości
LOKAL
Rodzaj transakcji
WYNAJEM
Status
AKTUALNA
Rodzaj rynku
WTÓRNY
Cena cena w innych walutach
1 178,75 PLN
Cena za m2
25,00 PLN
Kraj
POLSKA
Województwo
ZACHODNIOPOMORSKIE
Miejscowość
Stargard
Ulica
Aleja Gryfa
Powierzchnia całkowita
47,15 m²
Rodzaj budynku
BLOK
Rok budowy
1988
Materiał ścian
WIELKA PŁYTA
Parter
Ilość pięter [wliczając parter]
4
Garaż
Stan budynku
DOBRY

Doradca odpowiedzialny za ofertę

Tomasz Zaborowski

Zapytaj o ofertę