(Symbol 437310) MIESZKANIE na SPRZEDAŻSzczecin, Pomorzany
Pomorzany 2 pok. z balkonem pow. 46,80 m2
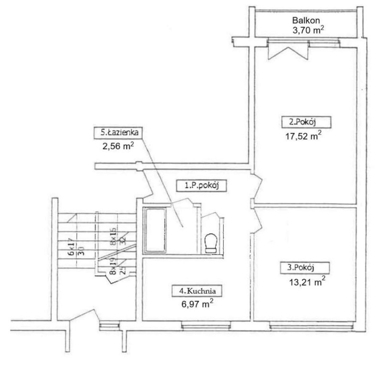
Na sprzedaż mieszkanie 2-pokojowe o powierzchni 46,80 m², zlokalizowane na początku Pomorzan – tuż przy węźle komunikacyjnym (przystanek tramwajowy i autobusowy wielu linii, przystanek Szczecińskiej Kolei Metropolitalnej).
Budynek jest ocieplony, a samo mieszkanie jest schludne, jasne oraz posiada funkcjonalny rozkład pomieszczeń. Z większego pokoju wyjście na słoneczną loggię.
To świetna propozycja inwestycyjna, szczególnie dla studentów medycyny – szpital na Pomorzanach znajduje się w bliskiej odległości.
Ogrzewanie pochodzi z sieci miejskiej, a okna PCV zapewniają komfort i ciszę.

Status prawny to spółdzielcze własnościowe prawo do lokalu, dzięki czemu mieszkanie mogą nabywać również obywatele Ukrainy.
Czynsz do zarządcy wynosi 670 zł i zawiera zaliczki na ciepłą i zimną wodę, ogrzewanie oraz fundusz remontowy.
Do lokalu przynależy piwnica (4,4 m2) oraz boks (3,6 m2).

Okolica jest spokojna, z przyjaznym sąsiedztwem i dobrym dostępem do infrastruktury usługowo-handlowej.
Dodatkowo, za kwotę 30 000 zł można dokupić blaszany garaż zlokalizowany niedaleko budynku – idealne rozwiązanie dla osób ceniących komfort parkowania.

Zapraszam na bezpłatną prezentację – to miejsce, które warto zobaczyć!

Treść niniejszego ogłoszenia nie stanowi oferty handlowej w rozumieniu Kodeksu Cywilnego. Treść ma charakter informacyjny i zalecamy ich osobistą weryfikację. Kontaktując się z biurem Klient wyraża zgodę na przetwarzanie danych osobowych zgodnie z przepisami ustawy z dnia 29 sierpnia 1997 roku o ochronie danych osobowych / Dz.U.Nr. 133 poz. 883/. Klientowi przysługuje prawo do wglądu do swoich danych osobowych i ich aktualizacji.

Symbol
437310
Symbol SWO
437310
Rodzaj nieruchomości
MIESZKANIE
Rodzaj transakcji
SPRZEDAŻ
Status
AKTUALNA
Rodzaj rynku
WTÓRNY
Cena cena w innych walutach
439 000,00 PLN
Cena za m2
9 380,34 PLN
Kraj
POLSKA
Województwo
ZACHODNIOPOMORSKIE
Miejscowość
Szczecin
Dzielnica - osiedle
Pomorzany
Ulica
ul. Aleja Powstańców Wielkopolskich
Powierzchnia całkowita
46,80 m²
Forma własności działki
WŁASNOŚĆ
Wartość udziału w działce
1
Rodzaj budynku
BLOK
Rok budowy
1965
Standard
DOBRY
Materiał ścian
WIELKA PŁYTA
Typ kuchni
ODDZIELNA
Liczba łazienek
1
Liczba WC
1
Liczba pokoi
2
Piętro
4
Ilość pięter [wliczając parter]
4
Wysokość kondygnacji [m]
255,00 cm
Umeblowanie
PEŁNE
Podłączony gaz
Piekarnik
Zmywarka
Garaż
Balkon
Nr Licencji
26541

Doradca odpowiedzialny za ofertę

Sobiesław Berenda

Zapytaj o ofertę

Podobne oferty nieruchomości