(Symbol 437338) MIESZKANIE na SPRZEDAŻGoleniów,
NOWE 4 POKOJOWE MIESZKANIE Z OGRODEM GOLENIÓW
JUŻ DZISIAJ UMÓW SIĘ NA PREZENTACJĘ!!!

Przedmiotem sprzedaży jest LOKAL MIESZKALNY w stanie do wykończenia, wybudowany w technologii tradycyjnej według indywidualnego projektu.

Nieruchomość położona w GOLENIOWIE, na cichym i spokojnym osiedlu domków jednorodzinnych.
Mieszkanie znajduje się w budynku czterolokalowym, położony na działce o pow. 338 m2, częściowo ogrodzonej. Dojazd drogą gminną gruntową.
Przed budynkiem wykonana kostka polbrukowa.

Media - prąd, woda i kanalizacja z sieci miejskiej.

Ogrzewanie - gaz,

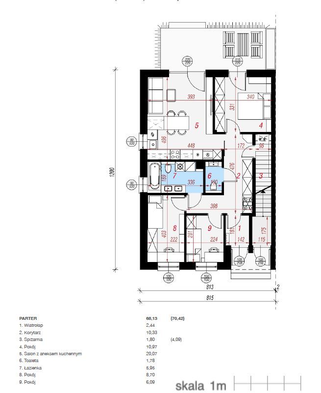
Mieszkanie o pow. użytkowa 68,13 m2, na którą składa się:

- salon z aneksem kuchennym - 20,07 m² (wyjście na ogród),
- pokoje - 10,97 m²; 8,70 m² ; 6,09 m²
- łazienka - 5,95 m²,
- spiżarnia - 1,80 m²,
- hol - 10,33m2,
- wiatrołap - 2,44 m2


KONSTRUKCJA:
- Ściany konstrukcyjne - bloczki beton komórkowy 24 cm, ściany wewnętrzne - bloczki beton komórkowy 12 cm,
- Strop - betonowy,
- Ocieplenie ścian zewnętrznych - styropian 20 cm,
- Pokrycie dachu - dachówka.

STANDARD WYKOŃCZENIA
- drzwi wejściowe,
- okna PCV 3-szybowe + okno tarasowe,
- instalacja - elektryczna, wodna, kanalizacyjna, gazowa, RTV,
- system ogrzewania podłogowego w całym domu,
- ocieplenie dachu - wełna.

W pokojach ściany gładzone malowane, podłogi posadzki. Miejsca postojowe na podjeździe.

Cena zawiera podatek VAT - 8%. Kupujący zwolniony z podatku 2% od czynności cywilnoprawnych.

Koszty związane z nabyciem nieruchomości:
- opłaty u notariusza - taksa notarialna, opłaty sądowe, opłata za wypisy aktu,
- wynagrodzenie biura nieruchomości za usługę pośrednictwa w zakupie.

ZAPRASZAMY NA PREZENTACJE i DO SKŁADANIA OFERT ZAKUPU !!!

Treść niniejszego ogłoszenia nie stanowi oferty handlowej w rozumieniu Kodeksu Cywilnego. Treść ma charakter informacyjny i zalecamy ich osobistą weryfikację. Kontaktując się z biurem Klient wyraża zgodę na przetwarzanie danych osobowych zgodnie z przepisami ustawy z dnia 29 sierpnia 1997 roku o ochronie danych osobowych / Dz.U.Nr. 133 poz. 883/. Klientowi przysługuje prawo do wglądu do swoich danych osobowych i ich aktualizacji.

Symbol
437338
Stan budynku
IDEALNY
Symbol SWO
437338
Rodzaj nieruchomości
MIESZKANIE
Rodzaj transakcji
SPRZEDAŻ
Status
AKTUALNA
Rodzaj rynku
PIERWOTNY
Cena cena w innych walutach
535 000,00 PLN
Cena za m2
7 852,63 PLN
Kraj
POLSKA
Województwo
ZACHODNIOPOMORSKIE
Miejscowość
Goleniów
Ulica
ul. Juliusza Słowackiego
Powierzchnia całkowita
68,13 m²
Forma własności działki
WŁASNOŚĆ
Rok budowy
2025
Standard
DO WYKOŃCZENIA
Materiał ścian
BLOCZKI BETONOWE
Typ kuchni
ANEKS KUCHENNY
Liczba łazienek
1
Liczba pokoi
4
Parter
Ilość pięter [wliczając parter]
1
Źródło c.w.
GAZOWY 2-OBIEGOWY
Ogrzewanie
C.O. GAZOWE
Energia elektryczna
Podłączony gaz
Podłączona kanalizacja
Ogródek
Nr Licencji
24070

Doradca odpowiedzialny za ofertę

Iwona Granat

Zapytaj o ofertę

Podobne oferty nieruchomości