(Symbol 437725) DOM na SPRZEDAŻDobra,
Bliźniak Dobra 133 mkw, ogród, 2 m.parking.
Oferta sprzedaży domu jednorodzinnego dwulokalowego zlokalizowanego wśród niskiej zabudowy jednorodzinnej na zadbanym osiedlu w Dobrej z dostępem do wszystkich mediów.
Dojazd pod posesję drogą asfaltową i z polbruku.
Do każdego lokalu przynależne są 2 miejsca parkingowe oraz ogród zlokalizowany od strony południowo-zachodniej.

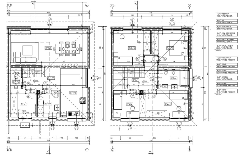
Na powierzchnię 133,49m2 składa się: 
Parter (66,27 m2):
- przestronny salon z jadalnią o powierzchni 30,34m2,
- aneks kuchenny (13,45m2),
- łazienka (6,19m2),
- wiatrołap (7,53m2),
- korytarz (6,83m2),
- pomieszczenie gospodarcze (1,93m2).
 Piętro (67,15 m2):
- cztery pokoje (13,45m2, 13,30m2, 12,21m2, 9,41m2),
- korytarz (11,98m2),
- łazienka (6,80m2).
Dodatkowo na strychu znajduje się około 12m2 powierzchni do własnego zagospodarowania.
Niewątpliwym atutem jest brak skosów na piętrze, dzięki czemu pokoje są bardzo ustawne.

Standard deweloperski obejmuje:
- System rekuperacji
- Pompę ciepła firmy York
- Ogrzewanie podłogowe w całym budynku
- Instalacje pod fotowoltaikę
- Ocieplenie budynku styropianem grafitowym o grubości 20 cm
- Okna trzyszybowe wraz z ciepłym montażem na profilach firmy REHAU, a w salonie okno typu HST na podwalinie (brak mostków termicznych)
- Ocieplenie poddasza i stropu pianą PUR
- Kanalizację sanitarną i deszczową
- Drzwi wejściowe antywłamaniowe z Relingiem
- Na parterze rolety zewnętrzne sterowane elektrycznie
- Biały osprzęt elektryczny
- Wylewane schody na piętro
- Schody na strych techniczne
- Podwójna ściana między lokalami z dylatacją
- Tynk zewnętrzny silikonowy
- Elewacja budynku koloru białego
Zagospodarowanie zewnętrzne:
- Podjazdy, podejście do domu i tarasy wyłożone kostką z polbruku
- Dwa miejsca parkingowe przed domem
- Teren ogrodzony panelami z siatki, furtka na ogród

Pełna infrastruktura drogowa wokół budynku (drogi dojazdowe oraz chodniki wyłożone kostką z polbruku).


 Kupujący jest zwolniony z 2% PCC.

Polecam i zapraszam na prezentację!

Treść niniejszego ogłoszenia nie stanowi oferty handlowej w rozumieniu Kodeksu Cywilnego. Treść ma charakter informacyjny i zalecamy ich osobistą weryfikację. Kontaktując się z biurem Klient wyraża zgodę na przetwarzanie danych osobowych zgodnie z przepisami ustawy z dnia 29 sierpnia 1997 roku o ochronie danych osobowych / Dz.U.Nr. 133 poz. 883/. Klientowi przysługuje prawo do wglądu do swoich danych osobowych i ich aktualizacji.

Symbol
437725
Stan budynku
DEWELOPERSKI
Symbol SWO
437725
Rodzaj nieruchomości
DOM
Rodzaj transakcji
SPRZEDAŻ
Status
AKTUALNA
Rodzaj rynku
PIERWOTNY
Cena cena w innych walutach
1 049 000,00 PLN
Cena za m2
7 858,27 PLN
Kraj
POLSKA
Województwo
ZACHODNIOPOMORSKIE
Miejscowość
Dobra
Ulica
Frezjowa
Powierzchnia całkowita
133,49 m²
Powierzchnia działki
340,00 m²
Powierzchnia użytkowa
133,49 m²
Rodzaj domu
BLIŹNIACZY
Rok budowy
2025
Standard
DEWELOPERSKI
Materiał ścian
SILIKAT
Typ kuchni
PRZEŚWIT
Liczba łazienek
2
Liczba pokoi
5
Ilość pięter [wliczając parter]
1
Energia elektryczna
Napięcie 400V (siła)
Podłączony wodociąg
Podłączona kanalizacja
Pokrycie dachu
DACHÓWKA
Garaż
Ogródek
Nr Licencji
22206

Doradca odpowiedzialny za ofertę

Iwona Granat

Zapytaj o ofertę

Podobne oferty nieruchomości