(Symbol 437777) MIESZKANIE na SPRZEDAŻSzczecin, Podjuchy
2-3 pokoje | Podjuchy | parter | ogródek + garaż
Przedstawiamy ofertę sprzedaży mieszkania w kameralnej niskiej kamienicy (tylko 6 rodzin) w Podjuchach niedaleko Placu Szewińskiej, ale położonej w cichej bocznej uliczce. W cenie mieszkania jest przynależy ogródek o powierzchni około 20mkw oraz garaż blaszany.
 
Istnieje możliwość łatwego przywrócenia dawnego układu, ale także dowolnego kształtowania przestrzeni dziennej, dzięki czemu uzyskamy przestronny salon z aneksem kuchennym i częścią jadalnianą (rzut i wizualizacja).
 
Mieszkanie:
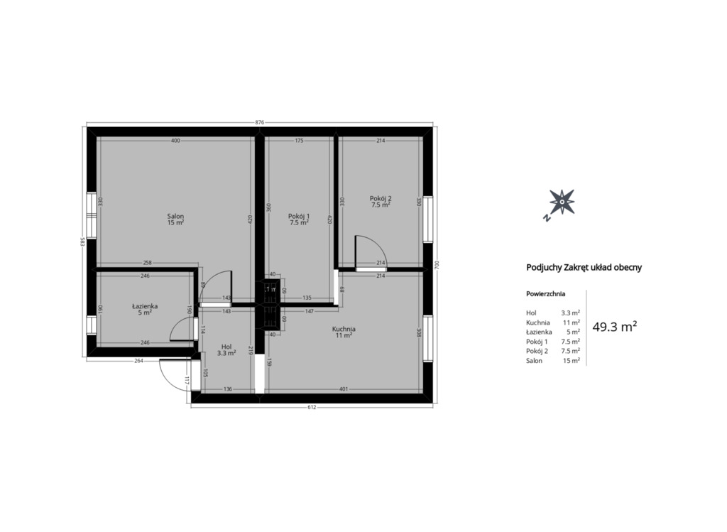
* powierzchnia 49,3mkw
* pierwotnie 2 pokoje (obecnie 3), kuchnia, łazienka i przedpokój
* na podłogach panele (pokoje) i gres (pozostała część), ściany gładzone i malowane
* CO i ciepła woda z nowoczesnego pieca gazowego (w pokojach grzejniki, podłogówka w kuchni i łazience)
* wymieniona instalacja elektryczna
* okna PCV po wymianie wychodzące na obie strony
* przynależna piwnica, a także ogródek (15mkw) i garaż blaszany
 
Budynek:
*mieszkanie znajduje się na parterze w 2 piętrowym domu wielorodzinnym
*fasada świeżo po odnowieniu wykonana wraz z izolacją pionową
*dach po remoncie (adaptacje)
*zadbane podwórko
 
Okolica:
 
Dom znajduje się w wyjątkowo atrakcyjnej lokalizacji — w zacisznej uliczce w pobliżu Placu Szewińskiej, w spokojnych i zielonych Podjuchach. To miejsce, które łączy komfort miejskiego życia z bliskością natury. W bezpośrednim otoczeniu dostępne są sklepy, punkty usługowe, szkoła, przedszkole oraz przystanki komunikacji miejskiej, co zapewnia wygodę na co dzień.
 
Okolica słynie z przyjaznej atmosfery i dużej ilości terenów zielonych. W kilka minut można dotrzeć do malowniczych tras spacerowych i rowerowych prowadzących w kierunku Puszczy Bukowej — idealnej dla osób aktywnych oraz wszystkich, którzy cenią odpoczynek na świeżym powietrzu.
 
Lokalizacja zapewnia szybki dojazd do centrum Szczecina i wjazd na trasę A6, a jednocześnie umożliwia korzystanie z uroków spokojnej, kameralnej dzielnicy. To doskonały wybór dla osób poszukujących miejsca oferującego zarówno wygodę, jak i codzienny kontakt z naturą.
 
Ważne:
* Koszty utrzymania przy 3 osobach to zaledwie 330zł i obejmuje czynsz z funduszem remontowym i zaliczkami na wodę
* koszty gazu to 350zł/mieś. Zimą i 80zł/mieś. latem
* nowa elektryka i hydraulika
* przynależna piwnica, ogródek i garaż
* dostępna kablówka Orange

Dlaczego my? Bo u nas czeka na Ciebie cały pakiet korzyści:
Oferujemy wsparcie architekta wnętrz, specjalisty ds. kredytów, licencjonowanego brokera ubezpieczeń (nieruchomości, pojazdy, życie) a także obsługę podatkową na miejscu u nas w biurze lub telefonicznie
Pomagamy w sprzedaży, zakupie, wynajmie i zarządzaniu nieruchomościami
Wykonujemy bezpłatną wycenę
Zapewniamy bezpieczeństwo transakcji
Proponujemy dodatkowe korzyści za polecenie lub transakcję wiązaną
Gwarantujemy 10% rabatu na zakupy w sieci Leroy Merlin
Sprzedajemy mieszkania wykonane `pod klucz`
Kupujemy nieruchomości za gotówkę "od ręki"
Współpracujemy z…
- rzeczoznawcą majątkowym
- firmą remontową
- firmą transportową
- firmą sprzątającą
- stolarzem
- ogrodnikiem
- salonem osłon okiennych...
 
… i wiele więcej, o czym można przeczytać na naszej stronie, na której znajduje się więcej ciekawych ofert. Serdecznie zapraszamy.

Treść niniejszego ogłoszenia nie stanowi oferty handlowej w rozumieniu art. 66 §1 Kodeksu Cywilnego, ma charakter informacyjny i została utworzona na podstawie oświadczeń właściciela nieruchomości, wobec czego zalecamy ich osobistą weryfikację. Kontaktując się z biurem Klient wyraża zgodę na przetwarzanie danych osobowych zgodnie z przepisami ustawy z dnia 29 sierpnia 1997 roku o ochronie danych osobowych / Dz.U.Nr. 133 poz. 883/. Klientowi przysługuje prawo do wglądu do swoich danych osobowych i ich aktualizacji.

Treść niniejszego ogłoszenia nie stanowi oferty handlowej w rozumieniu Kodeksu Cywilnego. Treść ma charakter informacyjny i zalecamy ich osobistą weryfikację. Kontaktując się z biurem Klient wyraża zgodę na przetwarzanie danych osobowych zgodnie z przepisami ustawy z dnia 29 sierpnia 1997 roku o ochronie danych osobowych / Dz.U.Nr. 133 poz. 883/. Klientowi przysługuje prawo do wglądu do swoich danych osobowych i ich aktualizacji.

Symbol
437777
Symbol SWO
437777
Rodzaj nieruchomości
MIESZKANIE
Rodzaj transakcji
SPRZEDAŻ
Status
AKTUALNA
Rodzaj rynku
WTÓRNY
Cena cena w innych walutach
349 000,00 PLN
Cena za m2
7 079,11 PLN
Kraj
POLSKA
Województwo
ZACHODNIOPOMORSKIE
Miejscowość
Szczecin
Dzielnica - osiedle
Podjuchy
Ulica
Zakręt
Powierzchnia całkowita
49,30 m²
Rodzaj budynku
DOM
Rok budowy
1960
Standard
DO ODŚWIEŻENIA
Materiał ścian
CEGŁA
Typ kuchni
ODDZIELNA
Powierzchnia kuchni
11 m²
Liczba łazienek
1
Liczba pokoi
3
Parter
Ilość pięter [wliczając parter]
2
Wysokość kondygnacji [m]
260,00 cm
Umeblowanie
NA ŻYCZENIE
Podłączony gaz
Lodówka
Piekarnik
Zmywarka
Ogrodzenie
PEŁNE
Garaż
Nr Licencji
28201
Kuchenka mikrofalowa

Doradca odpowiedzialny za ofertę

Sobiesław Berenda

Zapytaj o ofertę

Podobne oferty nieruchomości