(Symbol 432842) OBIEKT na SPRZEDAŻGartz (Oder) Uckermark , Brandenburgia , Niemcy,
Pensjonat z restauracją
Oferta sprzedaży funkcjonującego pensjonatu z restauracją - to atrakcyjna propozycja dla osób poszukujących dochodowej inwestycji w branży turystycznej.
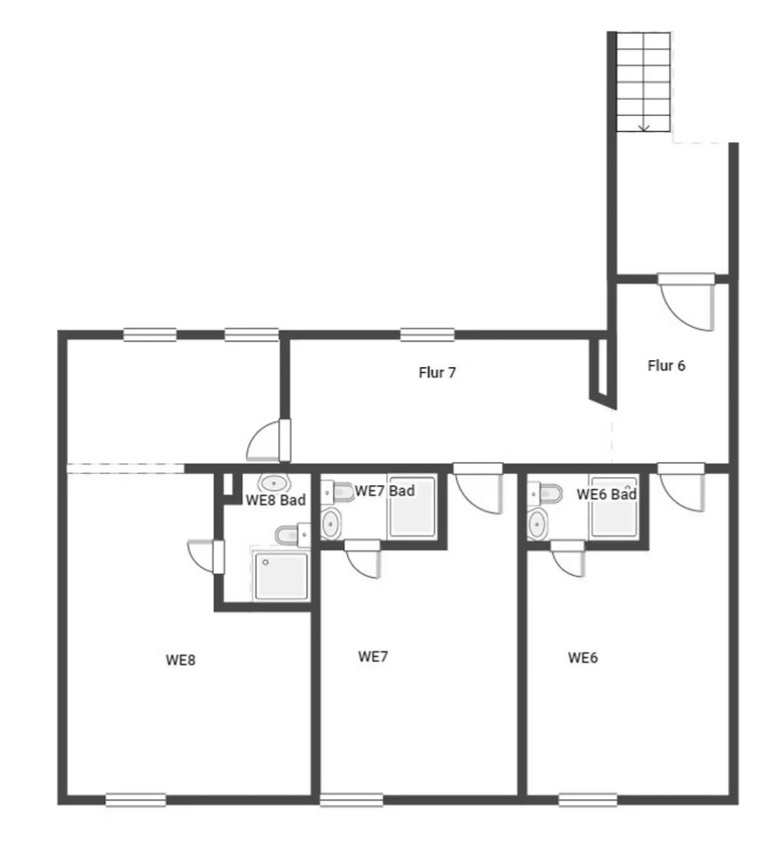
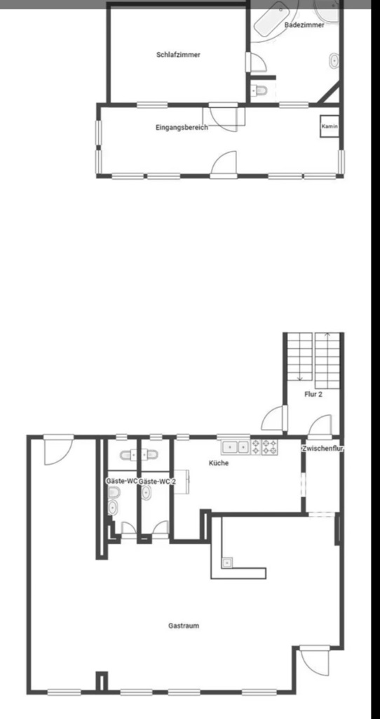
Obiekt wybudowany w 1994 roku o powierzchni całkowitej ok. 280m2 z czego ok.80m2 stanowi restauracja usytuowana na parterze budynku oraz ok. 160m2 to powierzchnia mieszkalna /pensjonatowa w tym 8 pokoi na pierwszym piętrze i poddaszu.

Przestronne miejsce z pełnym potencjałem, idealne do prowadzenia restauracji, kawiarni czy innego rodzaju działalności gastronomicznej.
Lokal dysponuje ponad 50miejscami dla gości w sali w budynku oraz ok. 60 miejscami na zewnątrz w ogródku/na tarasie.

Oddzielna, w pełni wyposażona kuchnia spełniająca wszystkie wymagania sanitarno-epidemiologiczne. Dobrze zaprojektowana przestrzeń umożliwia sprawną pracę personelu.
Lokal jest w pełni wyposażony, w tym w profesjonalny sprzęt gastronomiczny, meble, systemy wentylacji i klimatyzacji.
Pomieszczenia są gotowe do rozpoczęcia działalności, bez konieczności dużych nakładów finansowych na remonty.

Pensjonat posiada 8 przestronnych pokoi, każdy z własną łazienką, co zapewnia gościom komfort i prywatność.
Pokoje są jasne i przytulne, wyposażone w niezbędne meble oraz sprzęt, co sprawia, że goście czują się jak w domu.
Wnętrza pensjonatu są urządzone w prostym, ale funkcjonalnym stylu, idealnym do wypoczynku.
Łącznie pensjonat oferuje 20 miejsc noclegowych, co pozwala na obsługę większej liczby turystów, a jednocześnie zachowuje kameralny charakter.

Budynek jest dobrze utrzymany, z możliwością dalszej rozbudowy lub modernizacji, jeśli zajdzie taka potrzeba
Nowe ogrzewanie gazowe wykonane w 2022roku, elewacja w 2021r.
Instalacja alarmowa.
Budynek podpiwniczony co gwarantuje dodatkową powierzchnię a w niej chłodnia , powierzchnia magazynową , pralnia i kotłownia.
Obiekt posiada również instalację fotowoltaiczną 10KW z magazynem energii 15KW.
Dodatkowo na posesji budynek typu Bungalow z możliwością zamieszkania dla personelu lub jako dodatkowy apartament dla gości.

Obiekt położony jest w pięknej malowniczej lokalizacji w centrum średniowiecznego miasteczka w powiecie Uckermark w Brandenburgii.
Nadodrzański krajobraz zachęcająca odwiedzających gości zarówno do długich spacerów w pobliskim Parku Doliny Dolnej Odry jak i wycieczek rowerowych.
Pensjonat stanowi doskonałą okazję inwestycyjną – może być wykorzystywany zarówno w sezonie letnim, jak i zimowym, a dzięki odpowiedniemu standardowi usług ma potencjał przyciągania gości przez cały rok.

Obiekt sprzedany jest z pełnym wyposażeniem co umożliwia szybkie rozpoczęcie działalności po przejęciu.

Zapraszamy do umawiania terminów prezentacji.

Treść niniejszego ogłoszenia nie stanowi oferty handlowej w rozumieniu Kodeksu Cywilnego. Treść ma charakter informacyjny i zalecamy ich osobistą weryfikację. Kontaktując się z biurem Klient wyraża zgodę na przetwarzanie danych osobowych zgodnie z przepisami ustawy z dnia 29 sierpnia 1997 roku o ochronie danych osobowych / Dz.U.Nr. 133 poz. 883/. Klientowi przysługuje prawo do wglądu do swoich danych osobowych i ich aktualizacji.

Symbol
432842
Symbol SWO
432842
Rodzaj nieruchomości
OBIEKT
Rodzaj transakcji
SPRZEDAŻ
Status
AKTUALNA
Rodzaj rynku
WTÓRNY
Cena cena w innych walutach
2 100 000,00 PLN
Cena za m2
7 500,00 PLN
Kraj
NIEMCY
Miejscowość
Gartz (Oder) Uckermark , Brandenburgia , Niemcy
Ulica
Pommernstrasse
Powierzchnia całkowita
280,00 m²
Powierzchnia działki
520,00 m²
Forma własności działki
WŁASNOŚĆ
Rodzaj obiektu
PENSJONAT
Rok budowy
1994
Ilość pięter [wliczając parter]
2
Energia elektryczna
Podłączony gaz
Podłączony wodociąg
Podłączona kanalizacja
Internet
Alarm
Ogrodzenie
PEŁNE
Garaż
Nr Licencji
3492
Stan budynku
BARDZO DOBRY

Doradca odpowiedzialny za ofertę

Tomasz Zaborowski

Zapytaj o ofertę