(Symbol 433611) DOM na SPRZEDAŻBezrzecze,
Bezrzecze 5-6pok, garaż+ pom. ciepła +rekuperacja
Na sprzedaż nowoczesny dom w zabudowie bliźniaczej na Bezrzeczu.

Dom oddzielony od sąsiada podwójną ścianą nośną z dylatacją styropianu pomiędzy ( 18+3+18 )
Sprzedaż na podstawie umowy deweloperskiej i rachunku powierniczego.

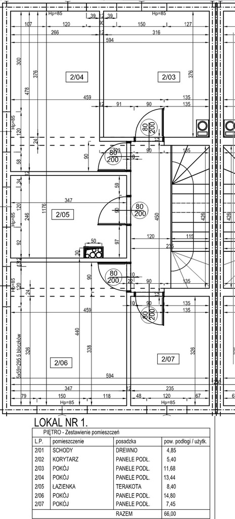
W budynku na piętrze brak skosów, układ bardzo funkcjonalny, pomieszczenia są ustawne.
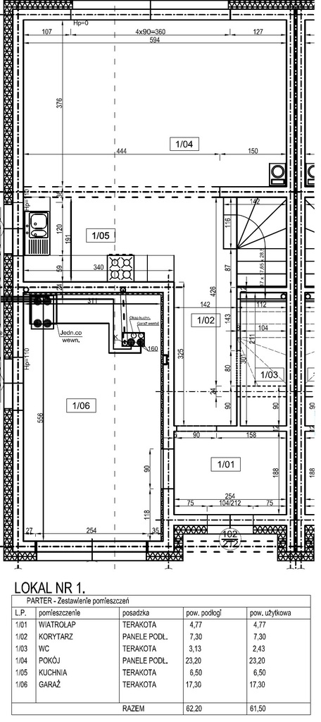
Parter: salon z aneksem kuchennym, przedsionek, łazienka oraz garaż. Na piętrze: cztery pokoje, łazienka, korytarz.
Dodatkowo na strychu będzie opcja wygospodarowania dodatkowego pokoju - około 30m2 powierzchni użytkowej z możliwością zamontowania wygodnych schodów na stałe (we własnym zakresie) - lub będzie to przestrzeń magazynowa.

Bliźniaki wykonane w podwyższonym standardzie developerskim:

- ogrzewanie podłogowe w każdym pomieszczeniu
- pompa ciepła Atlantic
- system rekuperacji
- instalacje pod fotowoltaikę

- ściany nośne 24cm + 20 cm styropianu
- okna trzy szybowe, ciepły montaż ( kolor na zewnątrz antracyt w środku białe )
- system kominowy, możliwość podłączenia kominka
- tynki maszynowe, gipsowe
- schody na piętro wylewane, żelbetowe

- drzwi zewnętrzne antywłamaniowe firmy Wikęd
- brama garażowa segmentowa na pilota, ocieplona - Wiśniowski
- rozprowadzone instalacje: elektryczna oraz wodno-kanalizacyjna
- instalacja alarmowa, R-TV i internetowa.

- dachówka ceramiczna szkliwiona - Roben Monza plus
- strop ocieplony celuloza lub piana PUR
- schody strychowe, drewniane


zagospodarowanie zewnętrzne :
- podjazd i wejście do domu z polbruku i kostki ażurowej
- taras z kostki betonowej
- teren wyrównany
- ogródki między sąsiadami otoczone siatką - systemową.
- tynk zewnętrzny silikonowo-silikatowy

Elewacja budynku jasna biała lub złamana biel z elementami koloru szarego lub antracytowego.
Kupujący zwolniony z opłaty PCC, 2 % do Urzędu Skarbowego.

Zapraszam na prezentację

Treść niniejszego ogłoszenia nie stanowi oferty handlowej w rozumieniu Kodeksu Cywilnego. Treść ma charakter informacyjny i zalecamy ich osobistą weryfikację. Kontaktując się z biurem Klient wyraża zgodę na przetwarzanie danych osobowych zgodnie z przepisami ustawy z dnia 29 sierpnia 1997 roku o ochronie danych osobowych / Dz.U.Nr. 133 poz. 883/. Klientowi przysługuje prawo do wglądu do swoich danych osobowych i ich aktualizacji.

Symbol
433611
Stan budynku
DEWELOPERSKI
Symbol SWO
433611
Rodzaj nieruchomości
DOM
Rodzaj transakcji
SPRZEDAŻ
Status
AKTUALNA
Rodzaj rynku
PIERWOTNY
Cena cena w innych walutach
1 050 000,00 PLN
Stara cena
1 090 000,00 PLN
Cena za m2
8 248,23 PLN
Kraj
POLSKA
Województwo
ZACHODNIOPOMORSKIE
Miejscowość
Bezrzecze
Powierzchnia całkowita
127,30 m²
Powierzchnia działki
290,00 m²
Szerokość działki (mb.)
12,00
Długość działki (mb.)
23,35
Kształt działki
PROSTOKĄT
Powierzchnia użytkowa
127,30 m²
Rodzaj domu
BLIŹNIACZY
Rok budowy
2025
Standard
DEWELOPERSKI
Materiał ścian
BLOCZKI BETONOWE
Typ kuchni
ANEKS KUCHENNY
Liczba łazienek
2
Powierzchnia łazienek
3+8
Liczba WC
1
Liczba pokoi
5
Ilość pięter [wliczając parter]
2
Energia elektryczna
Napięcie 400V (siła)
Podłączony gaz
Podłączony wodociąg
Podłączona kanalizacja
Internet
Telewizja kablowa
Monitoring
Pokrycie dachu
DACHÓWKA CERAMICZNA
Garaż
Miejsc garażowych
1
Ogródek
Garderoba
Kominek
Taras
Ilość tarasów
1
Powierzchnia tarasu
12
Nr Licencji
27249
Wyposażenie łazienki (wykaz)
,

Doradca odpowiedzialny za ofertę

Sobiesław Berenda

Zapytaj o ofertę

Podobne oferty nieruchomości