(Symbol 435439) MIESZKANIE na SPRZEDAŻSzczecin, Łasztownia
3 Pokoje I Taras, ogródek i balkon I Łasztownia
Na sprzedaż przestronne 3-pokojowe mieszkanie z tarasem, ogródkiem i balkonem, oferowane w stanie deweloperski, położone na 3. piętrze nowego apartamentowca w dynamicznie rozwijającej się szczecińskiej dzielnicy Łasztownia. 

NIERUCHOMOŚĆ:
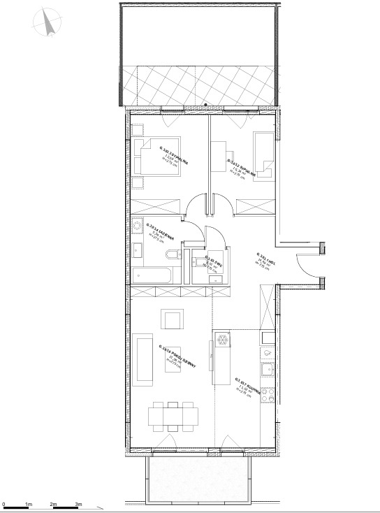
Mieszkanie o powierzchni 77,55 m2 składa się z:

- pokoju dziennego (21,56 m2) z wyjściem na balkon (7,15 m2),
- 2 sypialni (12,58 m2 i 10,34 m2) z wyjściem na taras (9,81 m2) i ogródek (14,70 m2),
- oddzielnej kuchni (11,02 m2),
- łazienki (5,56 m2),
- oddzielnej toalety (2,01 m2),
- holu (14,48 m2).

Istnieje możliwość zakupu miejsca postojowego w ogrzewanej hali garażowej, komórki lokatorskiej oraz boksu na rowery.

STAN NIERUCHOMOŚCI:
Nieruchomość w stanie deweloperskim. Do własnej aranżacji i wykończenia.

BUDYNEK i OKOLICA:
- nowa inwestycja wykonana w wysokim standardzie,
- przestronne, wysokie (do 276 cm) mieszkania z panoramicznymi przeszkleniami oraz balkonami, tarasami lub ogródkami, 
- części wspólne w budynku wykonane elegancko i zapewniające komfort mieszkańcom,
- ścieżki, chodniki oraz place wykonane z kostki granitowej z pasmami świetlnymi ukrytymi w posadzce,
- w budynku dostępne specjalne rowerownie do przechowywania rowerów dla lokatorów,
- brak barier dla osób starszych i z niepełnosprawnościami,
- na parterze budynku lokale przystosowane pod działalność usługową,
- duża liczba (większa niż ilość mieszkań) miejsc parkingowych w halach garażowych oraz ogólnodostępne miejsca w okolicy.

LOKALIZACJA:
Dynamicznie rozwijająca się dzielnica nad rzeką Odrą, tuż przy Starym Mieście i w bliskiej odległości od centrum miasta. 
Bardzo dobrze skomunikowana okolica (tramwaje, autobusy, dworzec główny PKP i PKS) z szybkim dostępem do punktów handlowo-usługowych (targowisko Tobruk, CH Kaskada), oświaty (PUM, ZUT, Uniwersytet Szczeciński, licea, szkoły, przedszkola itd.) oraz gastronomii. W pobliżu dostępne liczne instytucje kultury - Morskie Centrum Nauki, Opera na Zamku, Muzeum Narodowe, Filharmonia Szczecińska, teatry oraz atrakcje turystyczne i miejsca rekreacji.

DLA KOGO JEST TA NIERUCHOMOŚĆ:
Mieszkanie idealne dla rodziny lub inwestorów. Dla osób lubiących zarówno miejski styl życia, jak i bliskość natury oraz miłośników sportów wodnych.
Świetnie sprawdzi się jako inwestycja pod wynajem!

DLACZEGO WARTO KUPIĆ TO MIESZKANIE?
- znakomita, prężnie rozwijająca się i reprezentacyjna lokalizacja,
- mieszkanie do własnej aranżacji, zgodnie z gustem właściciela,
- nowa inwestycja wykonana nowocześnie i w wysokim standardzie,
- kupujący nie płaci podatku PCC,
- rewelacyjne jako inwestycja pod wynajem!

W ofercie dostępne również inne mieszkania w tej inwestycji o różnych parametrach oraz lokale usługowe!

Serdecznie polecam i zapraszam na prezentację! 

Treść niniejszego ogłoszenia nie stanowi oferty handlowej w rozumieniu Kodeksu Cywilnego. Treść ma charakter informacyjny i zalecamy ich osobistą weryfikację. Kontaktując się z biurem Klient wyraża zgodę na przetwarzanie danych osobowych zgodnie z przepisami ustawy z dnia 29 sierpnia 1997 roku o ochronie danych osobowych / Dz.U.Nr. 133 poz. 883/. Klientowi przysługuje prawo do wglądu do swoich danych osobowych i ich aktualizacji.

Symbol
435439
Symbol SWO
435439
Rodzaj nieruchomości
MIESZKANIE
Rodzaj transakcji
SPRZEDAŻ
Status
AKTUALNA
Rodzaj rynku
PIERWOTNY
Cena cena w innych walutach
1 090 494,00 PLN
Cena za m2
14 061,82 PLN
Kraj
POLSKA
Województwo
ZACHODNIOPOMORSKIE
Miejscowość
Szczecin
Dzielnica - osiedle
Łasztownia
Ulica
ul. Zielonego Mostu
Powierzchnia całkowita
77,55 m²
Rodzaj budynku
APARTAMENTOWIEC
Rok budowy
2024
Standard
DEWELOPERSKI
Materiał ścian
SILIKAT
Typ kuchni
ODDZIELNA
Powierzchnia kuchni
11, 02 m²
Liczba łazienek
1
Powierzchnia łazienek
5, 56
Liczba WC
1
Liczba pokoi
3
Powierzchnia pokoi
21, 56+ 12, 58+10, 34
Piętro
3
Ilość pięter [wliczając parter]
5
Wysokość kondygnacji [m]
275,00 cm
Umeblowanie
BRAK
Winda w nieruchomości
Monitoring
Garaż
Ogródek
Balkon
Ilość balkonów
1
Taras
Ilość tarasów
1
Nr Licencji
28146

Doradca odpowiedzialny za ofertę

Sobiesław Berenda

Zapytaj o ofertę

Podobne oferty nieruchomości