(Symbol 436059) MIESZKANIE na SPRZEDAŻSzczecin, Śródmieście-Centrum
M5 nowa kawalerka w centrum nowa inwestycja
Planujesz skredytować to marzenie – zadzwoń.

Nowa inwestycja znanego dewelopera - adaptacja poddasza w kamienicy z 1930 roku,  w centrum miasta, oddanie w sierpniu 2026.

Zamieszkaj w nowym mieszkaniu-stan deweloperski do wykończenia wg własnego uznania.

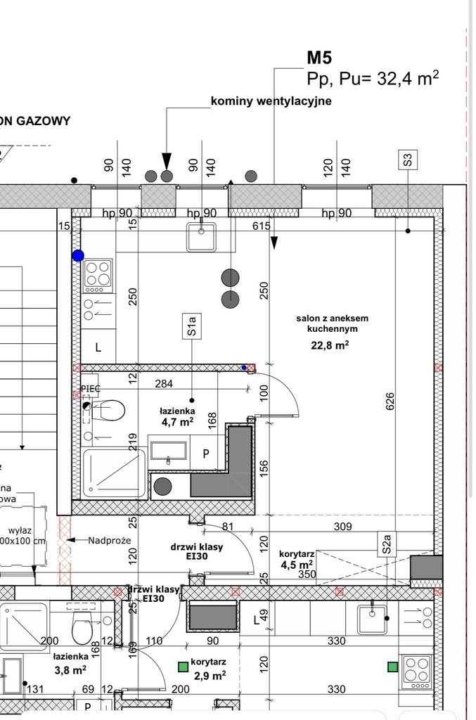
Na powierzchnię kawalerki (32,4 m2) składają się:

  • salon z aneksem kuchennym 22,8 m2
  • łazienka  3,8 m2
  • korytarz 2,9 m2

Ogrzewanie: gazowe, piec dwuobiegowy /CO,CW/

OPŁATY: czynsz ok 300 zł (zaliczki na wodę, FR) gaz i prąd wg zużycia
MEDIA: ciepła woda - z pieca gazowego, CO gazowe,
OKOLICA: liczne sklepy, komunikacja miejska: od 200 do 500 m, bary, restauracje, Galeria Kaskada 1200 m.

Kupujący nie płaci PCC.

W sumie inwestycja obejmuje 4 apartamenty 2 pokojowe od 28m2 do 36 m2 (ceny zaczynają się od 355000 zł) i kawalerkę.

Zapraszam do kontaktu.

Treść niniejszego ogłoszenia nie stanowi oferty handlowej w rozumieniu Kodeksu Cywilnego. Treść ma charakter informacyjny i zalecamy ich osobistą weryfikację. Kontaktując się z biurem Klient wyraża zgodę na przetwarzanie danych osobowych zgodnie z przepisami ustawy z dnia 29 sierpnia 1997 roku o ochronie danych osobowych / Dz.U.Nr. 133 poz. 883/. Klientowi przysługuje prawo do wglądu do swoich danych osobowych i ich aktualizacji.

Symbol
436059
Stan budynku
BARDZO DOBRY
Symbol SWO
436059
Rodzaj nieruchomości
MIESZKANIE
Rodzaj transakcji
SPRZEDAŻ
Status
AKTUALNA
Rodzaj rynku
PIERWOTNY
Cena cena w innych walutach
398 550,00 PLN
Cena za m2
12 300,93 PLN
Kraj
POLSKA
Województwo
ZACHODNIOPOMORSKIE
Miejscowość
Szczecin
Dzielnica - osiedle
Śródmieście-Centrum
Ulica
ul. Bohaterów Getta Warszawskiego
Powierzchnia całkowita
32,40 m²
Rodzaj budynku
KAMIENICA
Rok budowy
2026
Standard
DO WYKOŃCZENIA
Materiał ścian
CEGŁA
Typ kuchni
ANEKS KUCHENNY
Liczba łazienek
1
Liczba pokoi
1
Piętro
4
Ilość pięter [wliczając parter]
4
Źródło c.w.
GAZOWY 2-OBIEGOWY
Ogrzewanie
C.O. GAZOWE
Podłączony gaz
Nr Licencji
11681

Doradca odpowiedzialny za ofertę

Iwona Granat

Zapytaj o ofertę

Podobne oferty nieruchomości