(Symbol 436119) MIESZKANIE na SPRZEDAŻSzczecin, Pogodno
3 pokoje-1.piętro, do remontu, POGODNO
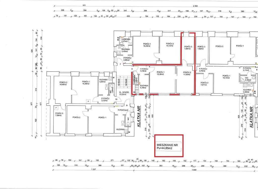
SZCZECIN POGODNO | 44,6 m² | 3 POKOJE |1. PIĘTRO 

Szukasz idealnej inwestycji lub miejsca do stworzenia mieszkania dla siebie?
Ta nieruchomość w kameralnej, cichej części Pogodna czeka na Twoją wizję!


Lokalizacja i Budynek
  • Lokalizacja: Prestiżowe Pogodno (cicha uliczka), jedna z najbardziej pożądanych dzielnic Szczecina.
  • Budynek: niski 2-piętrowy budynek z 1920 r.
  • Stan budynku: Ocieplony, klatki schodowe w trakcie remontu.
  • Piętro: Idealne 1. piętro.
  • Okolica: Cicha, zielona, spokojna i jednocześnie świetnie skomunikowana z centrum.

Parametry Mieszkania
  • Powierzchnia: 44,6 m².
  • Układ: 3 pokoje (2 przechodnie), kuchnia z oknem, łazienka i przedpokój.
  • Stan: Do gruntownego remontu – masz pełną dowolność aranżacji!
  • Ogrzewanie: Własny piec gazowy (instalacja grzewcza gazowa).
  • Okna: Wymienione na plastikowe.


Wymiary pomieszczeń
  • Pokój 1 - 16,39 m2
  • Pokój 2- 11 m2
  • Pokój 3- 7,86 m2
  • Kuchnia - 5,19 m2
  • P.pok - 3,19 m2
  • Łazienka - 1,22 m2


Kluczowe Atuty
  • Potencjał: Idealne do przearanżowania pod własny gust lub na cele inwestycyjne (np. wynajem ).
  • Koszty: Bardzo niski czynsz.
  • Dodatki: Przynależne dwie piwnice.
  • Lokalizacja: Adres, który zawsze się obroni – Pogodno!
  • Parking: Darmowe rotacyjne miejsca parkingowe na ulicy, brak strefy.

Stan prawny:
Pełna własność, KW, brak obciążeń.

Zapraszam do kontaktu.
Polecam!



Robert Nowak
Doradca ds. nieruchomości

Email: robert.nowak@inwestor.com.pl
Telefon: +48 503 879 350

Treść niniejszego ogłoszenia nie stanowi oferty handlowej w rozumieniu Kodeksu Cywilnego. Treść ma charakter informacyjny i zalecamy ich osobistą weryfikację. Kontaktując się z biurem Klient wyraża zgodę na przetwarzanie danych osobowych zgodnie z przepisami ustawy z dnia 29 sierpnia 1997 roku o ochronie danych osobowych / Dz.U.Nr. 133 poz. 883/. Klientowi przysługuje prawo do wglądu do swoich danych osobowych i ich aktualizacji.

Symbol
436119
Symbol SWO
436119
Rodzaj nieruchomości
MIESZKANIE
Rodzaj transakcji
SPRZEDAŻ
Status
AKTUALNA
Rodzaj rynku
WTÓRNY
Cena cena w innych walutach
365 000,00 PLN
Cena za m2
8 185,69 PLN
Kraj
POLSKA
Województwo
ZACHODNIOPOMORSKIE
Miejscowość
Szczecin
Dzielnica - osiedle
Pogodno
Ulica
ul. Karola Huberta Rostworowskiego
Powierzchnia całkowita
44,59 m²
Rodzaj budynku
BLOK
Rok budowy
1920
Standard
DO REMONTU KAPIT.
Materiał ścian
CEGŁA
Typ kuchni
Z OKNEM
Liczba łazienek
1
Liczba pokoi
3
Piętro
2
Ilość pięter [wliczając parter]
3
Podłączony gaz

Doradca odpowiedzialny za ofertę

Iwona Granat

Zapytaj o ofertę

Podobne oferty nieruchomości