(Symbol 436347) DOM na SPRZEDAŻKamień Pomorski,
Piętro domu, 139m2, 3pokoje, działka, 410 tys.zł
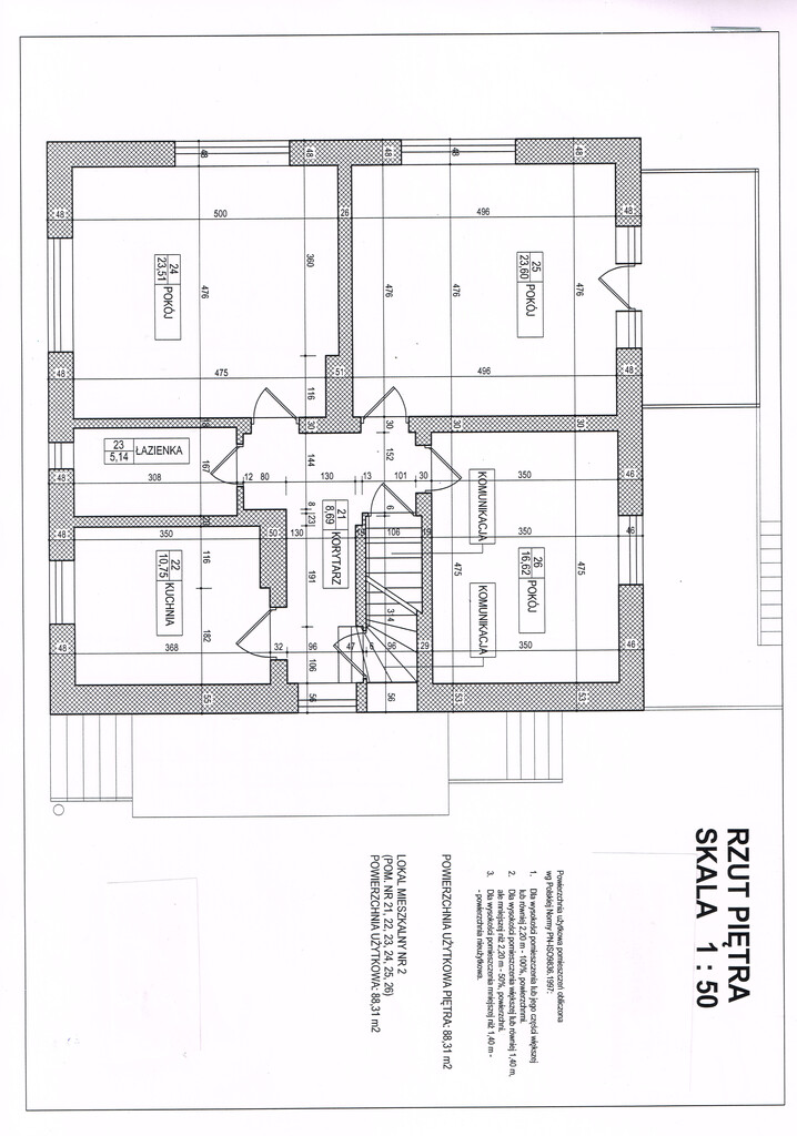
Atrakcyjna część domu wolno stojącego w podziale poziomym, zlokalizowana w Kamieniu Pomorskim, na pierwszym piętrze przedwojennego budynku o klasycznej architekturze. Przedmiotem sprzedaży jest lokal mieszkalny wraz ze strychem, pomieszczeniem gospodarczym w piwnicy, udział w gruncie oraz działka o powierzchni 383m2 przyległa do sprzedawanej nieruchomości. Powierzchnia użytkowa mieszkania wynosi 88,31m2 i składa się z:- korytarza ok. 9m2, -pokoju o pow. ok. 24m2 z wyjściem na balkon, pokoju o pow 23,5m2, dużej kuchni o powierzchni 10m2 oraz łazienki razem z wc o powierzchni 5m2. Pokoje i kuchnia są niezwykle ustawne i bardzo dobrze doświetlone. Na podłogach znajduje się deska oraz w łazience kafle. Okna wymienione na pcv, Instalacja ogrzewania miedziana. Na dachu dachówka cementowa. Współwłaściciele domu dokonali podziału części wspólnych na zasadzie wyłącznego korzystania. Księga Wieczysta bez obciążeń. Na przyległej działce prawdopodobnie istnieje możliwość utworzenia dogodnej ilości miejsc postojowych, wystąpienia o pozwolenie na wybudowanie garażu, lub wykorzystanie jej na cele rekreacyjne - będzie to wynikało z planu ogólnego lub MPZP. Doskonały dojazd do nieruchomości. Miejscowość Kamień Pomorski położona jest nad Zalewem Kamieńskim, 90 km od Szczecina i 8km od morza. Posiada nową, piękną marinę -w jednym z najnowocześniejszym portów jachtowych na południowym Bałtyku oraz zabytkową, XII wieczną Katedrę.

Świadectwo charakterystyki energetycznej - zapotrzebowanie na energię:

EU - użytkową (kWh/m2*rok): 43.61; EK - końcową (kWh/m2*rok): 58.47; EP - nieodnawialną energię pierwotną (kWh/m2*rok): 64.31; EC02 - Wielkość emisji CO2 (t C02/m2*rok): 0.01; UOZE - Udział odnawialnych źródeł energii w zapotrzebowaniu na energię końcową [%]: 0.00;

Treść niniejszego ogłoszenia nie stanowi oferty handlowej w rozumieniu Kodeksu Cywilnego. Treść ma charakter informacyjny i zalecamy ich osobistą weryfikację. Kontaktując się z biurem Klient wyraża zgodę na przetwarzanie danych osobowych zgodnie z przepisami ustawy z dnia 29 sierpnia 1997 roku o ochronie danych osobowych / Dz.U.Nr. 133 poz. 883/. Klientowi przysługuje prawo do wglądu do swoich danych osobowych i ich aktualizacji.

Symbol
436347
Stan budynku
DOBRY
Symbol SWO
436347
Rodzaj nieruchomości
DOM
Rodzaj transakcji
SPRZEDAŻ
Status
AKTUALNA
Rodzaj rynku
WTÓRNY
Cena cena w innych walutach
410 000,00 PLN
Cena za m2
4 648,53 PLN
Kraj
POLSKA
Województwo
ZACHODNIOPOMORSKIE
Miejscowość
Kamień Pomorski
Powierzchnia całkowita
139,24 m²
Powierzchnia działki
383,00 m²
Kształt działki
PROSTOKĄT
Powierzchnia użytkowa
88,30 m²
Rodzaj domu
PIĘTRO DOMU
Rok budowy
1940
Standard
DO DROBNEGO REMONTU
Materiał ścian
CEGŁA
Typ kuchni
ODDZIELNA
Liczba łazienek
1
Liczba pokoi
3
Ilość pięter [wliczając parter]
1
Energia elektryczna
Podłączony gaz
Podłączony wodociąg
Podłączona kanalizacja
Pokrycie dachu
DACHÓWKA
Liczba miejsc parkingowych
2
Nr Licencji
2067

Doradca odpowiedzialny za ofertę

Tomasz Zaborowski

Zapytaj o ofertę