(Symbol 436456) DOM na SPRZEDAŻSzczecin, Gumieńce
Piękny szeregowiec na Gumieńcach
Mam przyjemność zaprezentować Państwu bardzo interesujący dom 139m², 4pokojowy w zabudowie szeregowej, znajdujący się na Gumieńcach.
Do nieruchomości przynależy ogród z tarasem, idealny do wypoczynku na świeżym powietrzu, oraz garaż z automatyczną bramą na pilota. Dodatkowo przy domu znajdują się miejsca parkingowe dla mieszkańców i gości.


Na powierzchnię użytkową składają się:


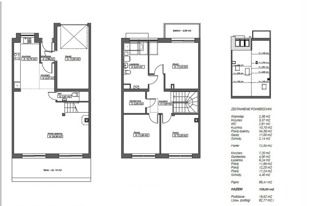
Parter:

- Salon z aneksem kuchennym o powierzchni 45,09 m2,
- wc o powierzchni 2,61 m2,
- korytarz o powierzchni 3,37 m2,
- wiatrołap o powierzchni 2,38 m2,
- garaż o powierzchni 17,00 m2,
- schody o powierzchni 2,14 m2.
+ Taras o powierzchni 15m2,
+ Ogród o powierzchni 178 m2.


Piętro:

- Pokój o powierzchni 17,24 m2,
- Pokój o powierzchni 12,20 m2,
- Pokój o powierzchni 11,95 m2,
- Garderoba o powierzchni 4 m2,
- Łazienka o powierzchni 9,24 m2,
- Korytarz o powierzchni 7,20 m2,
- Schody o powierzchni 4,20 m2.
+ Do swojej dyspozycji mają państwo również strych, który nie został wliczony w metraż domu .


Lokalizacja to doskonały wybór dla osób ceniących spokój, bezpieczeństwo i komfort, do centrum miasta zaledwie 15min.
W okolicy znajduje się dużo otwartej przestrzeni, co stanowi ogromny atut tej nieruchomości. W sąsiedztwie dostępne są również apteki, szkoły oraz przedszkola, co czyni to miejsce idealnym dla rodzin.

Nieruchomość sprzedawana w standardzie deweloperskim - Możliwe wykończenie domu pod klienta - odbiór pod klucz.

Serdecznie zapraszam na prezentację – ten dom z pewnością spełni Państwa oczekiwania!

Treść niniejszego ogłoszenia nie stanowi oferty handlowej w rozumieniu Kodeksu Cywilnego. Treść ma charakter informacyjny i zalecamy ich osobistą weryfikację. Kontaktując się z biurem Klient wyraża zgodę na przetwarzanie danych osobowych zgodnie z przepisami ustawy z dnia 29 sierpnia 1997 roku o ochronie danych osobowych / Dz.U.Nr. 133 poz. 883/. Klientowi przysługuje prawo do wglądu do swoich danych osobowych i ich aktualizacji.

Symbol
436456
Stan budynku
DEWELOPERSKI
Symbol SWO
436456
Rodzaj nieruchomości
DOM
Rodzaj transakcji
SPRZEDAŻ
Status
AKTUALNA
Rodzaj rynku
PIERWOTNY
Cena cena w innych walutach
1 299 000,00 PLN
Cena za m2
9 345,32 PLN
Kraj
POLSKA
Województwo
ZACHODNIOPOMORSKIE
Miejscowość
Szczecin
Dzielnica - osiedle
Gumieńce
Powierzchnia całkowita
139,00 m²
Powierzchnia działki
178,00 m²
Kształt działki
NIEREGULARNY
Powierzchnia użytkowa
139,00 m²
Forma własności działki
WŁASNOŚĆ
Wartość udziału w działce
1
Rodzaj domu
SZEREGOWIEC
Rok budowy
2025
Standard
DEWELOPERSKI
Materiał ścian
SILIKAT
Typ kuchni
PRZEŚWIT
Powierzchnia kuchni
10, 70 m²
Liczba łazienek
1
Powierzchnia łazienek
11, 85
Liczba WC
1
Powierzchnia WC
11, 85
Liczba pokoi
3
Powierzchnia pokoi
3
Ilość pięter [wliczając parter]
1
Energia elektryczna
Napięcie 400V (siła)
Podłączony gaz
Podłączony wodociąg
Podłączona kanalizacja
Internet
Telewizja kablowa
Monitoring
Pokrycie dachu
DACHÓWKA
Garaż
Miejsc garażowych
1
Ogródek
Garderoba
Ilość balkonów
1
Powierzchnia balkonu
4, 69 m²
Taras
Ilość tarasów
1
Powierzchnia tarasu
15
Nr Licencji
18591

Doradca odpowiedzialny za ofertę

Tomasz Zaborowski

Zapytaj o ofertę

Podobne oferty nieruchomości