(Symbol 436525) LOKAL na SPRZEDAŻSzczecin, Śródmieście-Centrum
Prestiżowy lokal biurowy z balkonem i parkingiem
Przestronna przestrzeń biurowa w centrum Szczecina – ul. Księcia Bogusława X

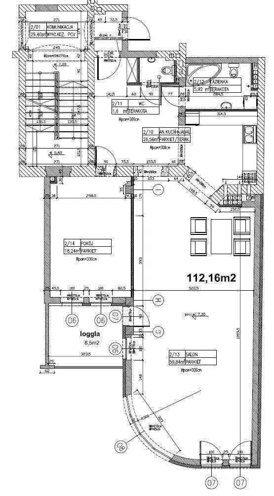
Wyjątkowa oferta dla firm, które szukają prestiżowej lokalizacji i funkcjonalnej przestrzeni biurowej w sercu miasta. Lokal o powierzchni 112,16 m² mieści się na drugim piętrze eleganckiego apartamentowca z 2010 roku, z wejściem bezpośrednio od reprezentacyjnego deptaku.

Przestrzeń jest w pełni gotowa do aranżacji według potrzeb przyszłego właściciela – doskonale sprawdzi się jako biuro firmy, kancelaria prawna, gabinet specjalistyczny lub showroom.

Układ i możliwości aranżacyjne

Lokal wyróżnia się wysokimi pomieszczeniami (ok. 3,3 m) i funkcjonalnym układem, który można łatwo dopasować do własnych potrzeb.

Obecnie w skład nieruchomości wchodzą:

przestronna strefa open space z dużymi oknami i wyjściem na balkon,

wydzielona część biurowa lub gabinetowa,

zaplecze socjalne z aneksem kuchennym,

łazienka i osobne WC,

reprezentacyjny przedpokój lub recepcja.

Ściana oddzielająca gabinet od głównej przestrzeni ma charakter działowy, co pozwala na dowolną aranżację układu i stworzenie idealnego miejsca pracy.

Komfort codziennego użytkowania

Lokal jest jasny, cichy i komfortowy. Balkon od strony dziedzińca zapewnia prywatność, a widok na wewnętrzny parking gwarantuje wygodę pracownikom i klientom.

Do dyspozycji właściciela i najemców dostępne są miejsca postojowe za szlabanem. Ogrzewanie oraz ciepła woda pochodzą z sieci miejskiej, a czynsz administracyjny wynosi około 820 zł miesięcznie.

Lokalizacja klasy premium

Ulica Księcia Bogusława X to jedna z najbardziej prestiżowych lokalizacji w Szczecinie. Bliskość centrum, sąsiedztwo instytucji publicznych, restauracji, kawiarni oraz usług sprawia, że to miejsce doskonale nadaje się do prowadzenia działalności biznesowej.

Bezpośrednie wejście od strony deptaku pozwala również na montaż szyldu lub reklamy, zwiększając widoczność marki i przyciągając klientów.

Atuty nieruchomości

Prestiżowa lokalizacja w ścisłym centrum miasta,

Przestronna powierzchnia z dużym potencjałem aranżacyjnym,

Wysokie pomieszczenia i jasne wnętrza,

Balkon z widokiem na cichy dziedziniec,

Miejsca postojowe dostępne dla właściciela i klientów,

Możliwość montażu szyldu od strony deptaku,

Pełna własność z księgą wieczystą.

Cena: 888 000 zł – to atrakcyjna propozycja dla firm, które poszukują reprezentacyjnej siedziby w prestiżowej lokalizacji z potencjałem wzrostu wartości.

Ta przestrzeń to idealne rozwiązanie dla biznesu, który stawia na prestiż, wygodę i profesjonalny wizerunek w samym centrum Szczecina.

Treść niniejszego ogłoszenia nie stanowi oferty handlowej w rozumieniu Kodeksu Cywilnego. Treść ma charakter informacyjny i zalecamy ich osobistą weryfikację. Kontaktując się z biurem Klient wyraża zgodę na przetwarzanie danych osobowych zgodnie z przepisami ustawy z dnia 29 sierpnia 1997 roku o ochronie danych osobowych / Dz.U.Nr. 133 poz. 883/. Klientowi przysługuje prawo do wglądu do swoich danych osobowych i ich aktualizacji.

Symbol
436525
Symbol SWO
436525
Rodzaj nieruchomości
LOKAL
Rodzaj transakcji
SPRZEDAŻ
Status
AKTUALNA
Rodzaj rynku
WTÓRNY
Cena cena w innych walutach
888 000,00 PLN
Cena za m2
7 928,57 PLN
Kraj
POLSKA
Województwo
ZACHODNIOPOMORSKIE
Miejscowość
Szczecin
Dzielnica - osiedle
Śródmieście-Centrum
Powierzchnia całkowita
112,00 m²
Rok budowy
2010
Materiał ścian
INNA
Piętro
2
Ilość pięter [wliczając parter]
4
Winda w nieruchomości
Monitoring
Nr Licencji
18591
Stan budynku
BARDZO DOBRY

Doradca odpowiedzialny za ofertę

Sobiesław Berenda

Zapytaj o ofertę

Podobne oferty nieruchomości