(Symbol 436699) MIESZKANIE na SPRZEDAŻSzczecin, Drzetowo
Rozkładowe 2 pok (możliwe 3) z balkonem blisko WSM
Na sprzedaż rozkładowe i bardzo ustawne mieszkanie o powierzchni 45,3mkw położone na 4 piętrze zadbanego niskiego bloku w świetnej lokalizacji blisko Centrum. Ze względu na miejsce jest to dobra propozycja zarówno dla osób szukających mieszkania na własne potrzeby, jak również dla inwestorów myślących o wynajmie dla studentów pobliskiej Politechniki Morskiej (ROI po opodatkowaniu >8%).
 
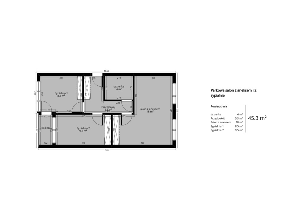
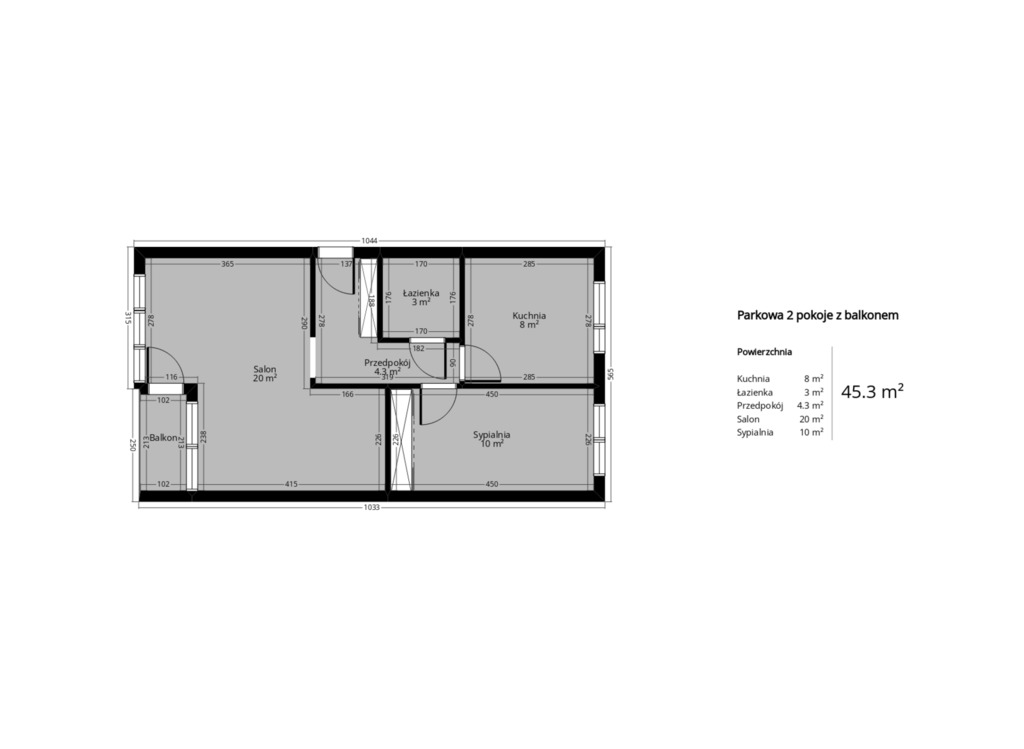
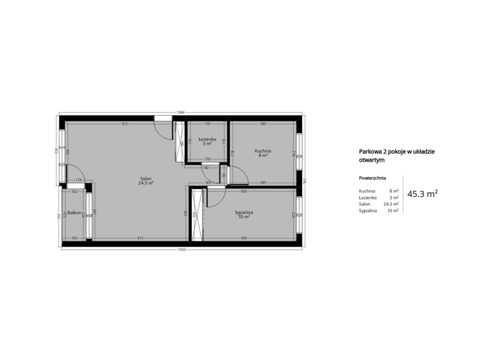
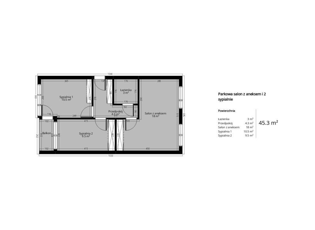
Istnieje możliwość łatwego dostosowania układu mieszkania do różnych potrzeb (rzuty/propozycje do wglądu):
- uzyskanie dużej przestrzeni dziennej poprzez likwidację ściany dzielącej salon od przedpokoju
- uzyskanie rozkładowych 3 pokojów poprzez podzielenie salonu na 2 mniejsze
- uzyskanie salonu z aneksem poprzez połączenie kuchni i sypialni przy jednoczesnym podziale obecnego salonu na 2 sypialnie
- możliwość powiększenia łazienki w każdym wariancie
 
Mieszkanie:
* powierzchnia 45,3mkw
* 4 piętro w niskim bloku z czystą i zadbaną klatką schodową
* salon z wnęką i wyjściem na balkon od strony cichego i zielonego podwórka (zachód)
* sypialnia od wschodniej strony
* osobna widna i foremna kuchnia
* łazienka z prysznicem, wc i umywalką z możliwością powiększenia
* przedpokój z dużą szafą z możliwością otwarcia na salon
* okna PCV w bardzo dobrym stanie
* ciepła woda i ogrzewanie z sieci miejskiej
 
Budynek:
* niski ocieplony blok
* zadbana klatka schodowa
* parkowanie wzdłuż ulicy przy budynku bez strefy PP
* przynależna piwnica
* dostępne media od Orange
 
Okolica:
Bardzo dobra lokalizacja pod każdym względem dla osób szukających swojego `M2` w mieście – w pobliżu sklepy większe i mniejsze, piekarnia, apteka, kościół, szkoła, basen, punkty usługowe, handlowe i beauty. W pobliżu przystanki linii autobusowych linii 53, 58, 59, 60, 67, 68, 101, 107 i tramwajowych linii 1, 2, 3, 5, 6, 8 i 11. Do tego brak strefy PP wzdłuż ulicy, a dojazd do CH Galaxy zajmuje zaledwie 3 minuty (na pieszo 10 minut). Park Żeromskiego oddalony jest o 500m. Stąd już całkiem niedaleko na Wały Chrobrego i do Teatru Polskiego. Ciężko o lepszą lokalizację – miejsce idealne dla osób ceniących miejski styl życia i wygodę.
 
Ważne:
* czynsz z zaliczkami na fundusz remontowy, ciepłą wodę i ogrzewanie miejskie przy 2 osobach wynosi 960zł
 
Istnieje możliwość łatwego dostosowania układu mieszkania do różnych potrzeb (rzuty/propozycje do wglądu):
- uzyskanie dużej przestrzeni dziennej poprzez likwidację ściany dzielącej salon od przedpokoju
- uzyskanie rozkładowych 3 pokojów poprzez podzielenie salonu na 2 mniejsze
- uzyskanie salonu z aneksem poprzez połączenie kuchni i sypialni przy jednoczesnym podziale obecnego salonu na 2 sypialnie
- możliwość powiększenia łazienki w każdym wariancie

Jesteś zainteresowany niezobowiązującym spotkaniem? Zadzwoń do nas już dziś!

We speak English, so, please don`t hesitate and contact us for more details.

Dlaczego my? Bo u nas czeka na Ciebie cały pakiet korzyści:
 
Oferujemy wsparcie architekta wnętrz, specjalisty ds. kredytów, licencjonowanego brokera ubezpieczeń (nieruchomości, pojazdy, życie) a także obsługę podatkową na miejscu u nas w biurze lub telefonicznie
Pomagamy w sprzedaży, zakupie, wynajmie i zarządzaniu nieruchomościami
Wykonujemy bezpłatną wycenę
Zapewniamy bezpieczeństwo transakcji
Proponujemy dodatkowe korzyści za polecenie lub transakcję wiązaną
Gwarantujemy 10% rabatu na zakupy w sieci Leroy Merlin
Sprzedajemy mieszkania wykonane `pod klucz`
Kupujemy nieruchomości za gotówkę "od ręki"
Współpracujemy z…
- rzeczoznawcą majątkowym
- firmą remontową
- firmą transportową
- firmą sprzątającą
- stolarzem
- ogrodnikiem
- salonem osłon okiennych...
 
… i wiele więcej, o czym można przeczytać na naszej stronie, na której znajduje się więcej ciekawych ofert. Serdecznie zapraszamy.

Treść niniejszego ogłoszenia nie stanowi oferty handlowej w rozumieniu art. 66 §1 Kodeksu Cywilnego, ma charakter informacyjny i została utworzona na podstawie oświadczeń właściciela nieruchomości, wobec czego zalecamy ich osobistą weryfikację. Kontaktując się z biurem Klient wyraża zgodę na przetwarzanie danych osobowych zgodnie z przepisami ustawy z dnia 29 sierpnia 1997 roku o ochronie danych osobowych / Dz.U.Nr. 133 poz. 883/. Klientowi przysługuje prawo do wglądu do swoich danych osobowych i ich aktualizacji.

Treść niniejszego ogłoszenia nie stanowi oferty handlowej w rozumieniu Kodeksu Cywilnego. Treść ma charakter informacyjny i zalecamy ich osobistą weryfikację. Kontaktując się z biurem Klient wyraża zgodę na przetwarzanie danych osobowych zgodnie z przepisami ustawy z dnia 29 sierpnia 1997 roku o ochronie danych osobowych / Dz.U.Nr. 133 poz. 883/. Klientowi przysługuje prawo do wglądu do swoich danych osobowych i ich aktualizacji.

Symbol
436699
Symbol SWO
436699
Rodzaj nieruchomości
MIESZKANIE
Rodzaj transakcji
SPRZEDAŻ
Status
AKTUALNA
Rodzaj rynku
WTÓRNY
Cena cena w innych walutach
399 000,00 PLN
Stara cena
419 000,00 PLN
Cena za m2
8 804,06 PLN
Kraj
POLSKA
Województwo
ZACHODNIOPOMORSKIE
Miejscowość
Szczecin
Dzielnica - osiedle
Drzetowo
Ulica
Jana Chryzostoma Paska
Powierzchnia całkowita
45,32 m²
Rodzaj budynku
BLOK
Rok budowy
1985
Standard
DO ODŚWIEŻENIA
Materiał ścian
WIELKA PŁYTA
Typ kuchni
Z OKNEM
Powierzchnia kuchni
8 m²
Liczba łazienek
1
Liczba pokoi
2
Powierzchnia pokoi
20, 10
Piętro
4
Ilość pięter [wliczając parter]
4
Wysokość kondygnacji [m]
250,00 cm
Umeblowanie
PEŁNE
Podłączony gaz
Lodówka
Piekarnik
Zmywarka
Nr Licencji
28201
Kuchenka mikrofalowa

Doradca odpowiedzialny za ofertę

Tomasz Zaborowski

Zapytaj o ofertę

Podobne oferty nieruchomości