(Symbol 437267) DOM na SPRZEDAŻRedlica,
Dom w zabudowie bliźniaczej za miastem | Redlica
Dom na sprzedaż w zabudowie bliźniaczej w stanie deweloperskim, z garażem i ogródkiem, położony przy ulicy Zielonej w miejscowości Redlica pomiędzy Wołczkowem a Dobrą w bliskiej odległości od drogi asfaltowej (droga dojazdowa z dobrze ułożonych płyt betonowych 1km, dobrze oświetlona).

Dom:
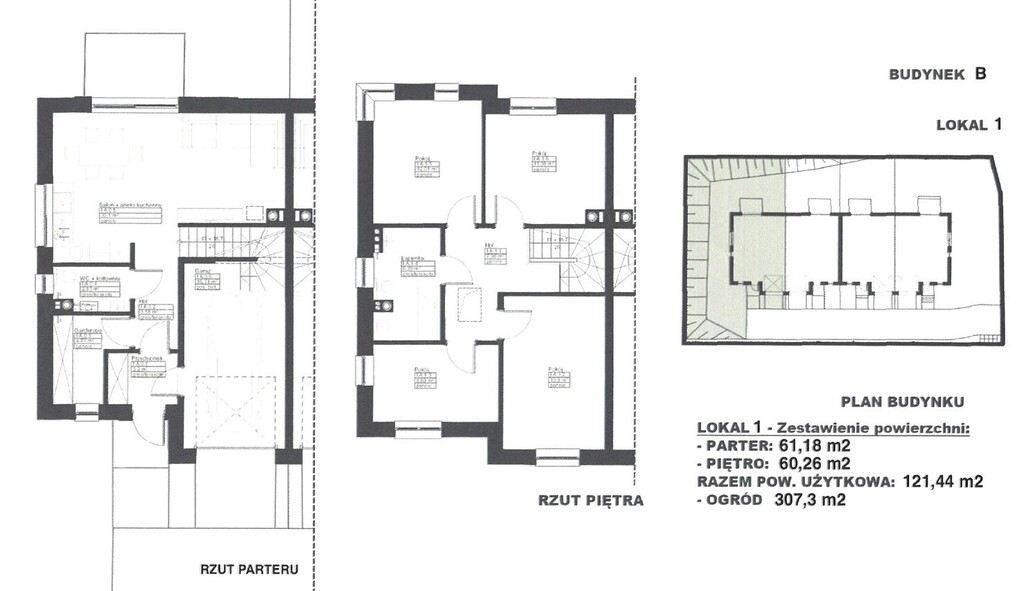
- pow. użytkowa 121,44mkw
- orientacja na wschód i południe (dużo światła)
- wys. pomieszczeń na parterze 290cm
- ściany: pustak ceramiczny Porotherm
- strop i ławy: żelbet
- dach: konstrukcja drewniana, dachówka ceramiczna
- ocieplenie budynku - styropian 20 cm
- ocieplenie stropu nad piętrem - wełna mineralna 25 cm
- izolacja przeciwwilgociowa i przeciwwodna; izolacja podłogi – styropian 20 cm
- sufit na piętrze w technologii kartonowo - gipsowej GK
- drzwi wejściowe metalowe antywłamaniowe
- okna PCV trzyszybowe; parapety zewnętrzne metalowe
- obróbka blacharska - blacha ocynkowana
- wykończenie ścian - tynki gipsowe
- ogrzewanie podłogowe w całym domu z piecem gazowym firmy De Dietrich z zamkniętą komorą spalania
- schody wylewane betonowe
- instalacja elektryczna 3-fazowa
- gotowa instalacja alarmowa antywłamaniowa
 
Parter: 61,18mkw
- garaż z bramą wjazdową na pilota
- łazienka (z piecem gazowym)
- salon z aneksem i wyjściem na ogródek; podłączenie pod kominek – komin z wkładem ceramicznym; drzwi tarasowe duże rozsuwane
- wiatrołap
- garderoba
 
Piętro: 60,62mkw
- duża łazienka z miejscem na wannę i prysznic
- 4 sypialnie
- hol

Dodatkowo duże poddasze, na które prowadzą opuszczane schody.
 
Działka:
- ogródek o powierzchni 307,3mkw
- dojazd do domu i taras – kostka z polbruku
- teren ogrodzony z bramą wjazdową na pilota
- możliwość wyznaczenia dodatkowego prywatnego miejsca postojowego plus jedno miejsce istniejące vis a vis garażu nie kolidujące z sąsiadami
 
Okolica:
Dom położony jest w cichej, malowniczej Redlicy – zaledwie 3km od Dobrej Szczecińskiej, 3km od Wołczkowa, 4km od Bezrzecza i 7km od przejścia granicznego w Lubieszynie. W okolicy domy jednorodzinne oraz w zabudowie bliźniaczej. Najbliższe sklepy to Dino i Netto, do których jest zaledwie 3km. Dzięki centralnemu umiejscowieniu w pobliżu znajdują się liczne przedszkola i szkoły, a także restauracje, punkty handlowe, usługowe i gastronomiczne, paczkomaty itp. Miejsce idealne dla rodziny, która szuka swojego miejsca do życia w otoczeniu zieleni z dostępem do miejskiej infrastruktury w okolicy, która szybko się rozwija.

Jesteś zainteresowany niezobowiązującym spotkaniem? Zadzwoń do nas już dziś!

We speak English, so please don`t hesitate and contact us for more details.
 
 
Dlaczego my? Bo u nas czeka na Ciebie cały pakiet korzyści:
 
Oferujemy wsparcie architekta wnętrz, specjalisty ds. kredytów, licencjonowanego brokera ubezpieczeń (nieruchomości, pojazdy, życie) a także obsługę podatkową na miejscu u nas w biurze lub telefonicznie
Pomagamy w sprzedaży, zakupie, wynajmie i zarządzaniu nieruchomościami
Wykonujemy bezpłatną wycenę
Zapewniamy bezpieczeństwo transakcji
Proponujemy dodatkowe korzyści za polecenie lub transakcję wiązaną
Gwarantujemy 10% rabatu na zakupy w sieci Leroy Merlin
Sprzedajemy mieszkania wykonane `pod klucz`
Kupujemy nieruchomości za gotówkę "od ręki"
Współpracujemy z…
- rzeczoznawcą majątkowym
- firmą remontową
- firmą transportową
- firmą sprzątającą
- stolarzem
- ogrodnikiem
- salonem osłon okiennych...
 
… i wiele więcej, o czym można przeczytać na naszej stronie, na której znajduje się więcej ciekawych ofert. Serdecznie zapraszamy.


Treść niniejszego ogłoszenia nie stanowi oferty handlowej w rozumieniu art. 66 §1 Kodeksu Cywilnego, ma charakter informacyjny i została utworzona na podstawie oświadczeń właściciela nieruchomości, wobec czego zalecamy ich osobistą weryfikację. Kontaktując się z biurem Klient wyraża zgodę na przetwarzanie danych osobowych zgodnie z przepisami ustawy z dnia 29 sierpnia 1997 roku o ochronie danych osobowych / Dz.U.Nr. 133 poz. 883/. Klientowi przysługuje prawo do wglądu do swoich danych osobowych i ich aktualizacji.

Treść niniejszego ogłoszenia nie stanowi oferty handlowej w rozumieniu Kodeksu Cywilnego. Treść ma charakter informacyjny i zalecamy ich osobistą weryfikację. Kontaktując się z biurem Klient wyraża zgodę na przetwarzanie danych osobowych zgodnie z przepisami ustawy z dnia 29 sierpnia 1997 roku o ochronie danych osobowych / Dz.U.Nr. 133 poz. 883/. Klientowi przysługuje prawo do wglądu do swoich danych osobowych i ich aktualizacji.

Symbol
437267
Stan budynku
IDEALNY
Symbol SWO
437267
Rodzaj nieruchomości
DOM
Rodzaj transakcji
SPRZEDAŻ
Status
AKTUALNA
Rodzaj rynku
WTÓRNY
Cena cena w innych walutach
915 000,00 PLN
Cena za m2
7 534,58 PLN
Kraj
POLSKA
Województwo
ZACHODNIOPOMORSKIE
Miejscowość
Redlica
Ulica
Zielona
Powierzchnia całkowita
121,44 m²
Powierzchnia działki
307,30 m²
Kształt działki
PROSTOKĄT
Powierzchnia użytkowa
121,44 m²
Forma własności działki
WŁASNOŚĆ
Wartość udziału w działce
1
Rodzaj domu
BLIŹNIACZY
Rok budowy
2024
Standard
DEWELOPERSKI
Materiał ścian
PUSTAK
Typ kuchni
PRZEŚWIT
Liczba łazienek
2
Liczba pokoi
5
Ilość pięter [wliczając parter]
1
Energia elektryczna
Podłączony gaz
Podłączony wodociąg
Podłączona kanalizacja
Monitoring
Pokrycie dachu
DACHÓWKA CERAMICZNA
Garaż
Miejsc garażowych
1
Powierzchnia tarasu
15
Nr Licencji
28201

Doradca odpowiedzialny za ofertę

Tomasz Zaborowski

Zapytaj o ofertę